067 137 96 24,077 555 40 55
Житлова нерухомість
дев"ятиповерховий будинок
вул.Карла Мікльоша № 1-Б
21 - однокімнатних
14 - двокімнатних
ОДНОКІМНАТНІ КВАРТИРИ
(друга черга)

від 39,5 до 50,7 кв.м
Однокімнатна 39.46кв.м
Однокімнатна 39.69 кв.м
Однокімнатна 39.79 кв.м
Однокімнатна 41.05 кв.м /з терасою/
Однокімнатна 41.80 кв.м /з терасою/
Однокімнатна 42.53 кв.м /з терасою/
Однокімнатна 44.18 кв.м
Однокімнатна 48.70 кв.м
Однокімнатна 50.69 кв.м

№ кв Поверх Заг.площа Жит.площа Статус
33839.4614.33резерв

№ кв Поверх Заг.площа Жит.площа Статус
3248.719.18продано
8348.719.18вільна
13448.719.18продано
18548.719.18продано
23648.719.18резерв

№ кв Поверх Заг.площа Жит.площа Статус
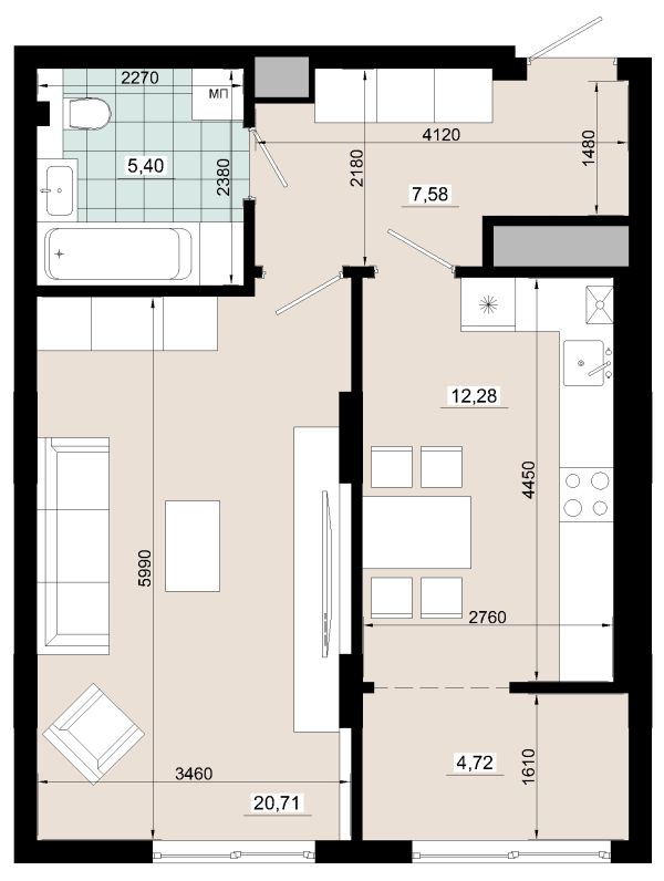
4250.6920.71вільна
9350.6920.71вільна
14450.6920.71вільна
19550.6920.71продано
24650.6920.71вільна

№ кв Поверх Заг.площа Жит.площа Статус
34839.6914.23вільна

№ кв Поверх Заг.площа Жит.площа Статус
27741.0514.33резерв

№ кв Поверх Заг.площа Жит.площа Статус
28741.814.33резерв

№ кв Поверх Заг.площа Жит.площа Статус
32839.7914.33резерв

№ кв Поверх Заг.площа Жит.площа Статус
29742.5314.23продано

№ кв Поверх Заг.площа Жит.площа Статус
2244.1814.33продано
7344.1814.33продано
12444.1814.33продано
17544.1814.33продано
22644.1814.33продано
1 поверх (комерція) 2 - поверх 3 - поверх 4 - поверх 5 - поверх 6 - поверх 7 - поверх 8 - поверх
Miha's toys Co
© Copyright 2013 - All Rights Reserved